Dvojdům č.109 - Rezidence "Zlaté Roudné"

Prodej moderního rodinného domu 5+kk - k nastěhování 4/2027

RD 98AB exterier vizualiazace (2).jpg
We will provide you with the best financing. Call +420 602 650 146, Ms Olga Koubova or call +420 601 142 787, Ms Andrea Pisnova.
11.335.000 ,-
Floor area:
113 m2
Built-up area:
136 m2
Land area:
489 m2
Description of the property:

Rezidence „Zlaté Roudné“ – 3. ETAPA – další domy ve výstavbě.
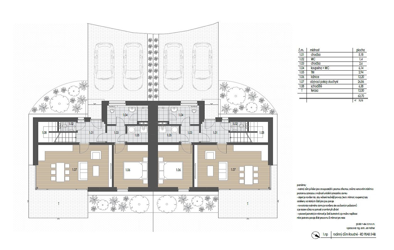
Nabízíme prodej novostavby rodinného domu „na klíč“ o dispozici 5+kk, patrový dvojdům – č.98A s pozemkem 489m2 (parc.č.480/141) a č. 98B s pozemkem 458m2 (parc. č. 480/98 – REZERVACE). Dům se nachází v ulici Ječná v Roudném na okraji Č. Budějovic. Obytná plocha domu je 113m2 + terasa 12m2, parkovací stání pro 2 auta.
Dispozice: 1.NP – vstupní chodba (7,78m2), koupelna se sprch. koutem, umyvadlem a WC (6,14m2), WC (1,4m2), technická místnost (2,94m2), pokoj (12,20m2), obývací pokoj s kuchyňským koutem (26,86m2), chodba se schodištěm (6,38). Z obýváku je vstup na terasu o výměře 12m2. Plocha parkovacího stání pro 2 auta 36m2.
2.NP – chodba (8,40m2), 3 ložnice (12,20m2, 11,10m2, 8,45m2), koupelna s vanou, sprch. koutem, umyvadlem, WC (7m2), samostatné WC (2m2).
Kolaudace a předání 4/2027.
Domy jsou situovány v klidné části výstavby. Zahrady domů jsou orientovány na jihozápad.

Zákazník nyní může sám volit konečnou podobu svého domu výběrem dle vlastního přání (podlahových krytin, vnitřních dveří, obkladů, dlažeb a sanity koupelny), standardy předložíme zájemci.
Zpevněná plocha – terasa ze zámkové dlažby Best Beleza, vchod a parking ze zámkové dlažby Best Klasik, plot – podhrabový obrubník+pletivo (180–200cm), systémová branka cca 1m + 3m brána dvoukřídlá, okapový chodník včetně oblázků, příprava na venkovní žaluzie (kastlíky). Vybavenost: konstrukce Porotherm 240–300 obvod, vnitřní 200, příčky 150, zateplovací systém 180 mm polystyren, plastová okna a dveře – izolační trojsklo, veškeré vnitřní rozvody – elektřina, plyn, voda, topení, plynový kotel BAXI se zásobníkem vody, v celém domě podlahové vytápění, podlahy vinyl a dlažba, dveře s obložkami, koupelny se sprch. koutem, vanou, umyvadlem a WC, příprava na fotovoltaiku.

“REZIDENCE ZLATÉ ROUDNÉ“ se nachází v obci Roudné asi 3 km jižně od Českých Budějovic. Roudné bylo založeno při levém břehu Malše, navazuje na městskou část Rožnov. Vybavenost obce Roudné: mateřská škola, hřiště, restaurace, knihovna, kulturní sál, požární zbrojnice, sběrný dvůr, v obci fungují spolky a sportovní kluby.
Navazujeme na již několikátý úspěšně realizovaný a velmi žádaný projekt investora, který je jednička ve svém oboru.

Velký zřetel je kladen na energetickou úspornost domu, aby budoucí majitel měl co nejnižší náklady na provoz domu (PENB – D).
Pozemky jsou přístupné po obecní komunikaci, výstavba domů probíhá na zasíťovaném ZTV – plyn, elektřina, vodovod, kanalizace, Starnet – optický kabel.
Hypoteční servis zdarma (naši hypoteční poradci řeší úvěry u všech bankovních domů za nejlepších podmínek na trhu).

No. of real est.:
CB260213
No. of real est.:
CB260213
Exclusively:
Yes
Operation:
Sale
Address:
Roudné
Ječná 611
Floor area:
113 m2
The location of the object:
Quiet part of the village
Built-up area:
136 m2
Land area:
489 m2
Terrace area:
12 m2
Construction:
Bricked
Age of the building:
2027
To move from:
30.4.2027
Gas at the property:
Individuální
Electricity at the property:
230v, 400v
Water supply:
Dálkový vodovod
Sewerage:
Veřejná kanalizace
Date of last modification:
31.3.2026
PENB:
B - Velmi úsporná
PENB type:
Decree č. 78/2013 Sb.
real estate broker: Romana Kolářová
Seller:
Romana Kolářová
telefon: 777235528
romana.kolarova@sorent.cz

Please fill in the following form for information without obligation:

* Name * Tel. No.
* Email
* Your message